ときわ台のアパートメント D
- 賃料
- 86,000円
- 共益費
- 6,000円
- 入居
- 2025年12月中旬
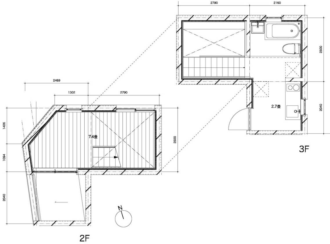
- 間取り
- 1K
- 面積
- 23.79㎡
- 住居
- 東京都板橋区富士見町38-6
- アクセス
-
東武東上線 ときわ台 10分
三田線 板橋本町 12分
東武東上線 中板橋 13分
- その他
- 施工年月
- 2018年1月
D号室
ときわ台のアパートメント 設計者のこだわり
四方に開かれた積層L字型プラン
それぞれの住戸を取り巻く周辺環境・住環境が異なるために、それぞれの状況に応じた快適さを考慮して7戸の単身者用住戸は違ったプランで計画されています。
設計者:
インドアビュー
アクセス
東京都板橋区富士見町38-6



